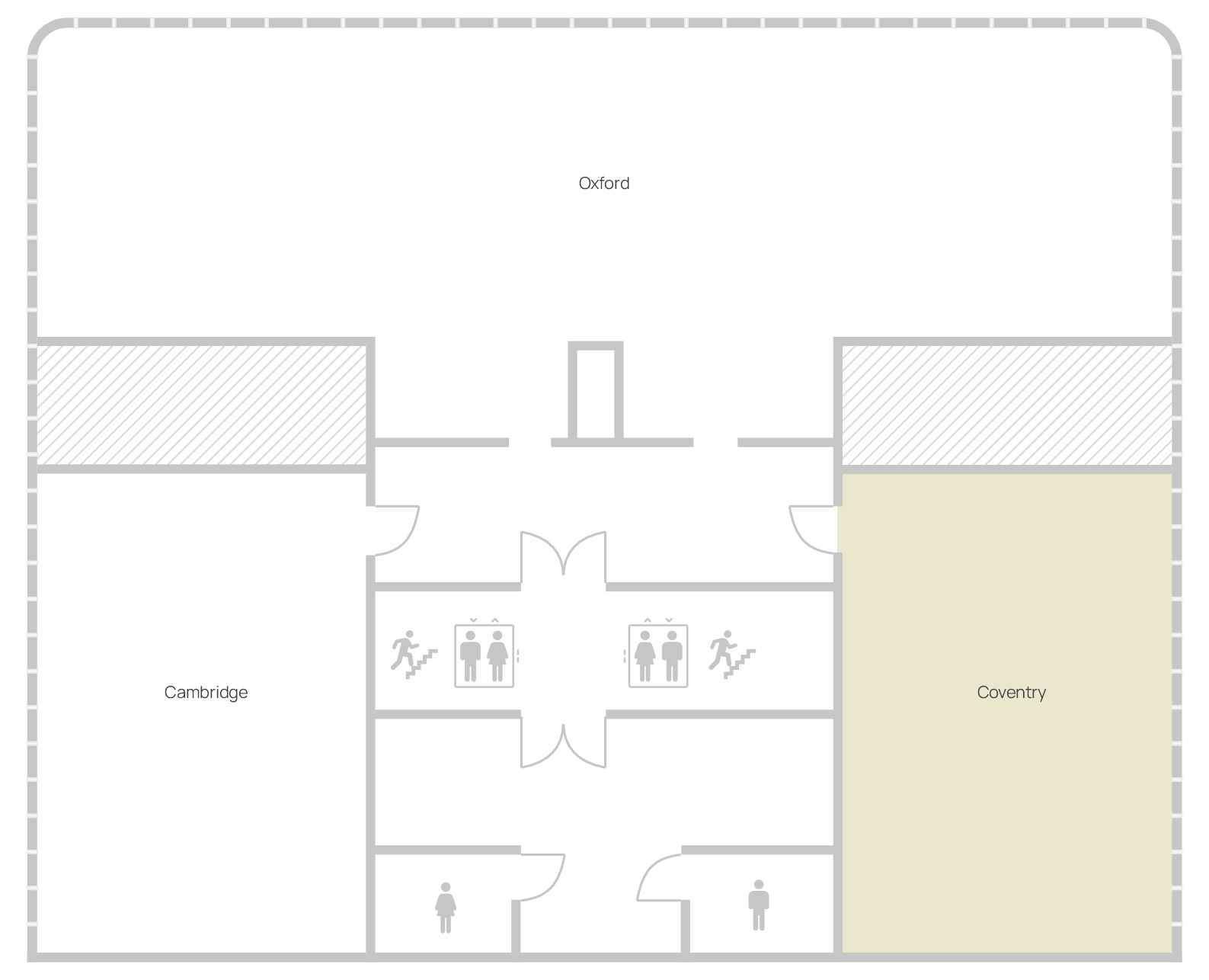
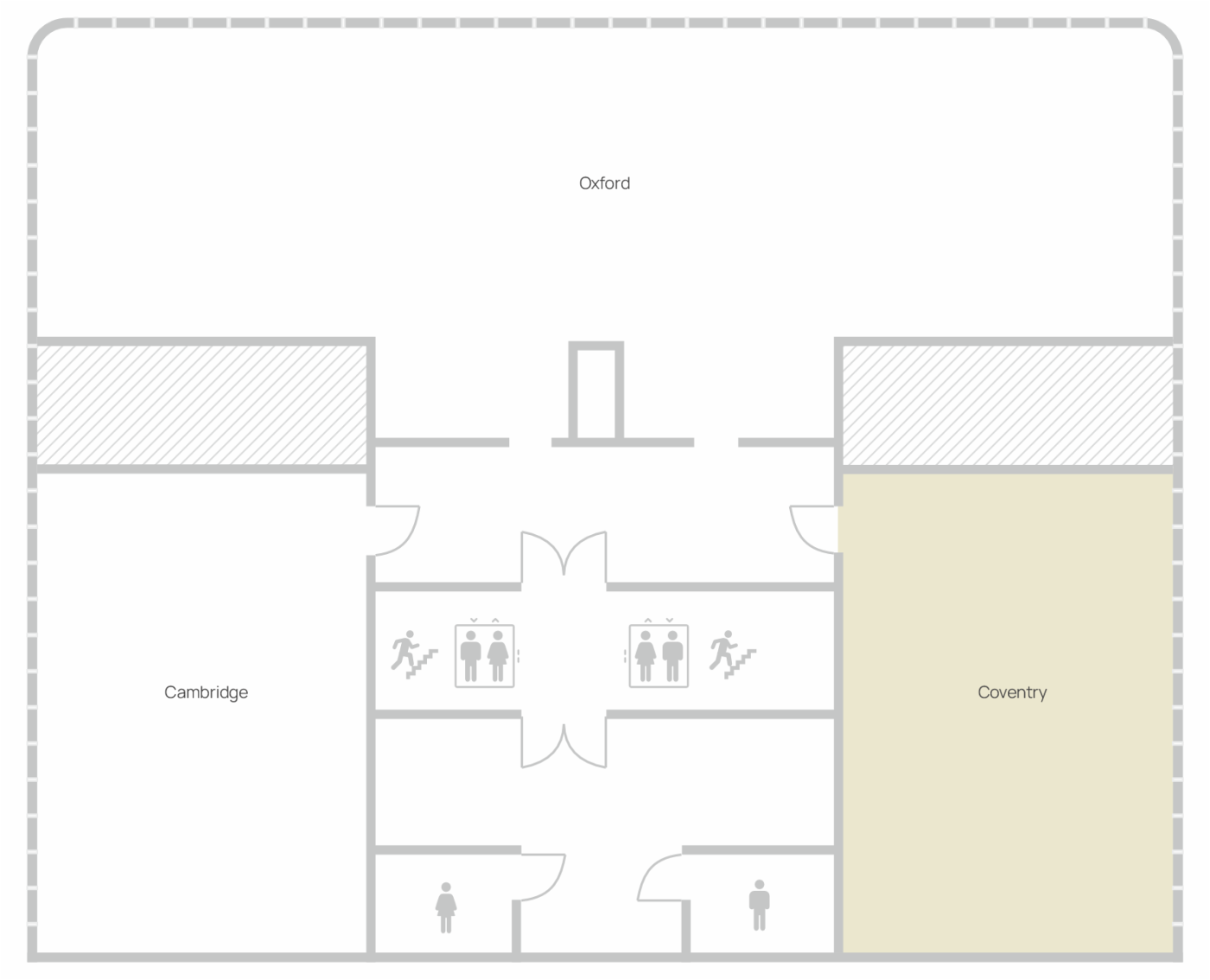
Ковентри — зал для эффективной
и плодотворной работы в небольших группах.
В нем есть все необходимое для брейнстормингов, семинаров, тренингов, переговоров или выездных командных сессий. А естественное освещение и удобная планировка помогут сделать мероприятие комфортным
и продуктивным для всех участников.
и продуктивным для всех участников.


